Rosha Fashion House
Location: Tehran - Iran
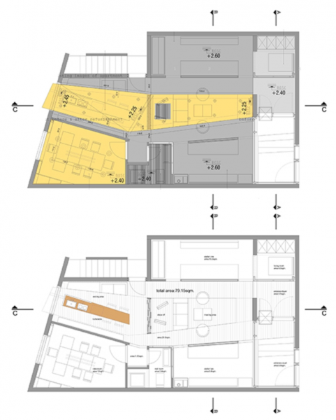
Area: 90 sqm.
Design Date: 2011
Client: Private Sector
Program: Renovation an existing apartment to design fashion house
Services: Concept , Basic & Detail Design + Construction Supervising
Team: Farshid Behzadian
Status: Completed