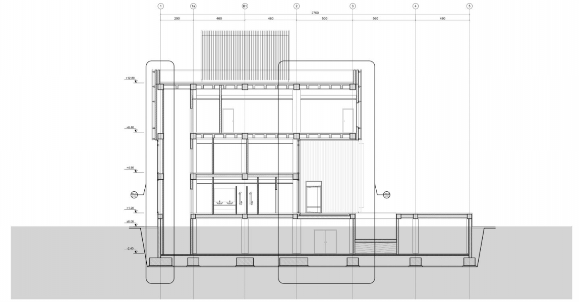
3P Headquarters-02

Location: Pardis Techpark- Tehran - Iran

Area: 2700 sqm.

Design Date: 2019

Client: Private Sector

Program:

Services: Concept , Basic & Detail Design

Team: Farshid Behzadian, Sheila Afzali, Nina Mirmohammadi

Status: Under Construction