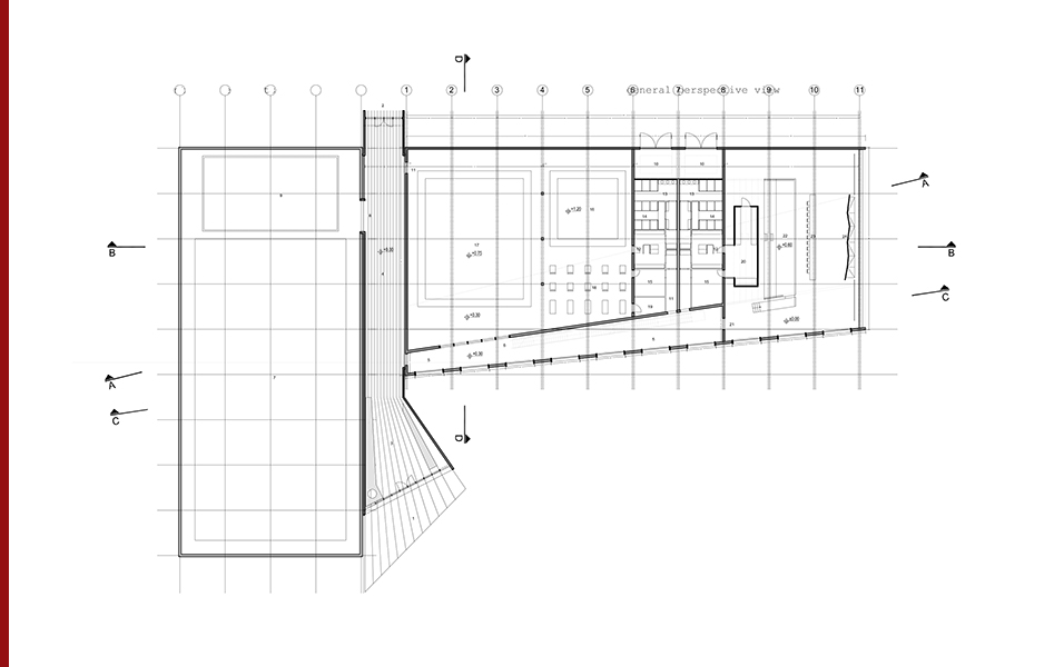
Indoor Sports Arena
Location: Zanjan - Iran
Area: 2200 sqm.
Design Date: 2010
Client: Physical Education Department of Zanjan Province
Program: Indoor climbing, martial arts, grandstand, changing rooms and athletic facilities, administrative offices
Services: Concept & Basic Design
Team: Farshid Behzadian
Status: Completed
.jpg)
.jpg)
.jpg)
.jpg)
.jpg)
.jpg)
.jpg)
.jpg)
.jpg)
.jpg)


