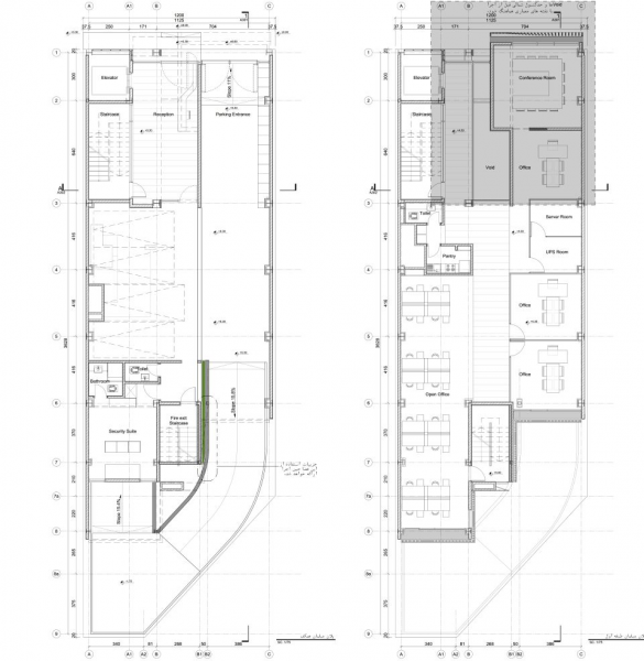
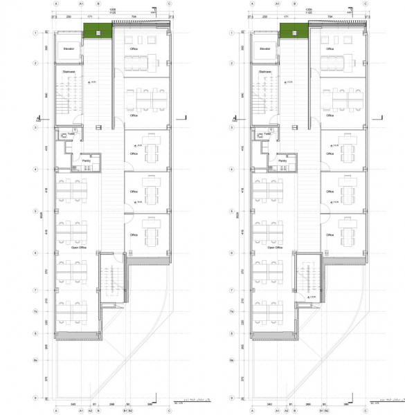
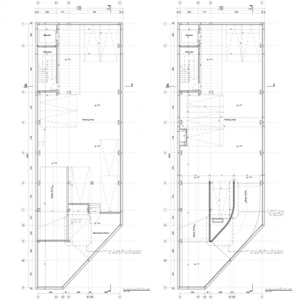
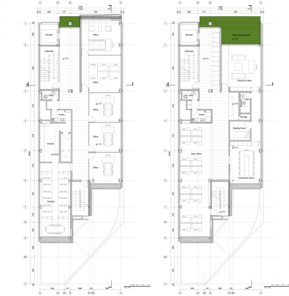
MotorBeshell HQ project
Location: Tehran - Iran
Area: 2600 sqm.
Design Date: 2017
Client: Private Sector
Program:
Services: Concept , Basic & Detail Design
Team: Farshid Behzadian, Sheila Afzali, Nina Mirmohammadi, Fatemeh Kazemi
Status: Under Construction