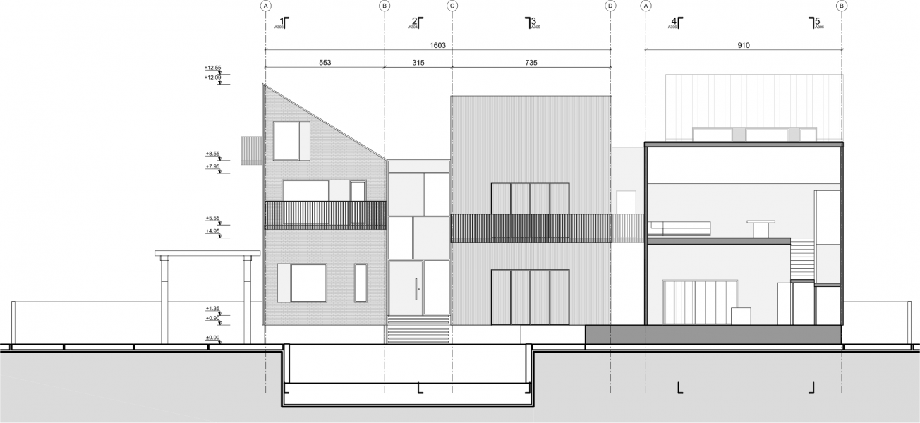
AMrb VillA

Location: TehranDasht - Karaj - Iran

Area: 550 sqm.

Design Date: 2017

Client: Private Sector

Program:

Services: Concept , Basic & Detail Design + Construction Supervision

Team: Farshid Behzadian, Sheila Afzali, Fatemeh Kazemi

Status: Under Construction